![]() |
| Проект коттеджа с зимним садом |
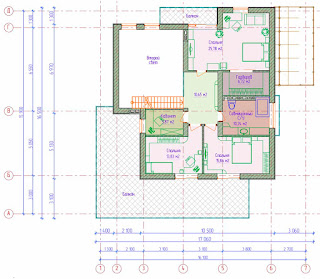
![]() |
| План 1-го этажа коттеджа с зимним садом |
![]() |
| План мансардного этажа коттеджа с зимним садом |
Стоимость данного проекта см. на нашем
новом сайте "Дом Морозовых"
Технико-экономические показатели:
Количество этажей - 1 +мансарда
Количество комнат - 5 + кабинет
Общая площадь - 218,16 м2
Жилая площадь - 100,79 м2
Площадь застройки - 272,44 м2
Описание проекта:
Жилая площадь - 100,79 м2
Площадь застройки - 272,44 м2
Описание проекта:
![]() |
| Готовый проект коттеджа мансардного типа с зимним садом |
- фундаменты ленточные монолитные из бетона класса С16/20;
- наружные стены: блоки из ячеистого бетона марки 600 В2.5 на клею - 400 мм, утеплением минераловатными плитами толщ. 50мм и устройством декоративно-защитного слоя; отделкой частей стен металлическими фасадными панелями с полимерным покрытием;
- кровля запроектирована стропильная с покрытием металлочерепицей.
![]() |
| Готовый проект коттеджа мансардного типа с зимним садом |
Расход строительных материалов:
1. Фундаменты ленточные:
- бетон класса С16/20 - 55,03 м3
- подушки фундаментные - 15,51 м3
2. Стены наружные:
- блоки из ячеистого бетона толщ 400мм - 104,6 м3
- утеплитель пенополистерол толщ. 50мм - 13,39 м3
![]() |
| Готовый проект коттеджа мансардного типа с зимним садом |
- внутренние несущие (кирпич пустотелый) толщ. 380мм - 31,59 м3
- перегородки (кирпич пустотелый) толщ. 120 мм - 12,46 м3
- вентшахты (кирпич полнотелый) - 14,18 м3
- бетон класса С16/20 - 0,26 м3
5. Покрытие кровли - 265,3 м2
Состав проекта (с иллюстрациями):
![]() |
| Готовый проект коттеджа мансардного типа с зимним садом |
![]() |
| Готовый проект коттеджа мансардного типа с зимним садом |
![]() |
| Интерьер коттеджа с зимним садом |
![]() |
| Интерьер коттеджа с зимним садом |
![]() |
| Интерьер коттеджа с зимним садом |
_____________________________________________________________










