![]()  | 
| Фото дома в 3D модели | 
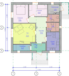
Согласно эскизному проекту:
Материалы внутренних и наружных стен, покрытие кровли, тип перекрытия, определяются непосредственно заказчиком
Технико-экономические показатели:
Количество этажей - 1
![]()  | 
| Фото дома в 3D модели | 
Площадь застройки - 100 м2
Общая площадь - 79,61 м2
Жилая площадь - 40,92 м2
Строительный объём - 438,60 м3
![]()  | 
| Фото дома в 3D модели | 
![]()  | 
| Фото дома в 3D модели | 
_________________________________________________________
_________________________________________________________





