![]() |
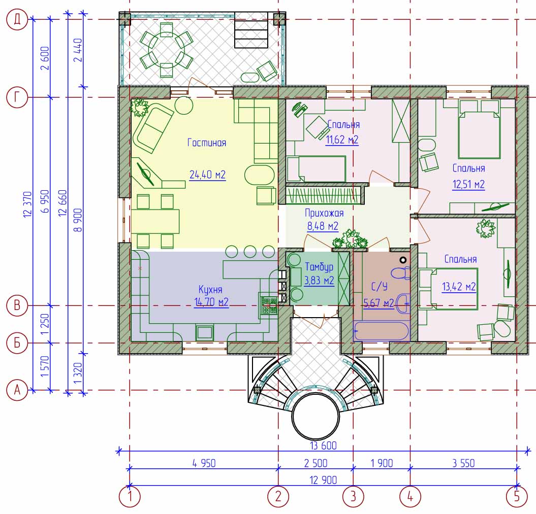
| Планировка одноэтажного жилого дома |
![]() |
| Проект одноэтажного жилого дома |
![]() |
| Проект одноэтажного жилого дома. 3D визуализация |
Подробнее об этом проекте на нашем
новом сайте "Дом Морозовых. Gallerу"
Технико-экономические показатели:
Количество этажей - 1
Количество комнат - 4
![]() |
| Проект одноэтажного жилого дома. 3D визуализация |
Жилая площадь - 61,9 м2
Площадь застройки - 145,3 м2
Описание проекта:
- Здание запроектировано одноэтажным с устройством чердака;
- фундаменты: монолитные из бетона класса С16/20;
![]() |
| Проект одноэтажного жилого дома. 3D визуализация |
- кровля запроектирована стропильная с покрытием металлочерепицей.
- перекрытия - по деревянным балкам;
Расход строительных материалов:
1. Фундаменты (бетон класса С16/20) - 32,38 м3
2. Блоки блоки из ячеистого бетона:
- стены толщ. - 400 мм - 62,14 м3
![]() |
| Проект одноэтажного жилого дома. 3D визуализация |
4. Кирпич:
- внутренние несущие толщ. - 250 мм - 8,67 м3
- перегородки - 4,95 м3
- колонны - 1,4 м3
- вентшахты - 3,35 м3
5. Покрытие кровли - 203,56 м2
6. Подшивка кровли - 50,6 м2
Состав проекта (с иллюстрациями):
![]() |
| Проект одноэтажного жилого дома. 3D визуализация |
![]() |
| Проект одноэтажного жилого дома. 3D визуализация |
_____________________________________________________________







